Professional Office Space in Downtown Edmonton
Spacious second-floor office space configured with multiple offices, boardrooms, reception area, kitchen, and two washrooms. Perfect for growing businesses seeking a professional environment.
Property Highlights
Everything your business needs in one professional space
2,500 sq ft
Spacious second-floor office space
Multiple Offices
4 private offices plus boardrooms
Full Kitchen
Equipped kitchen for your team
Two Washrooms
Convenient facilities on-site
Parking Included
1 dedicated stall + street parking
Flexible Terms
1 to 5 year lease options
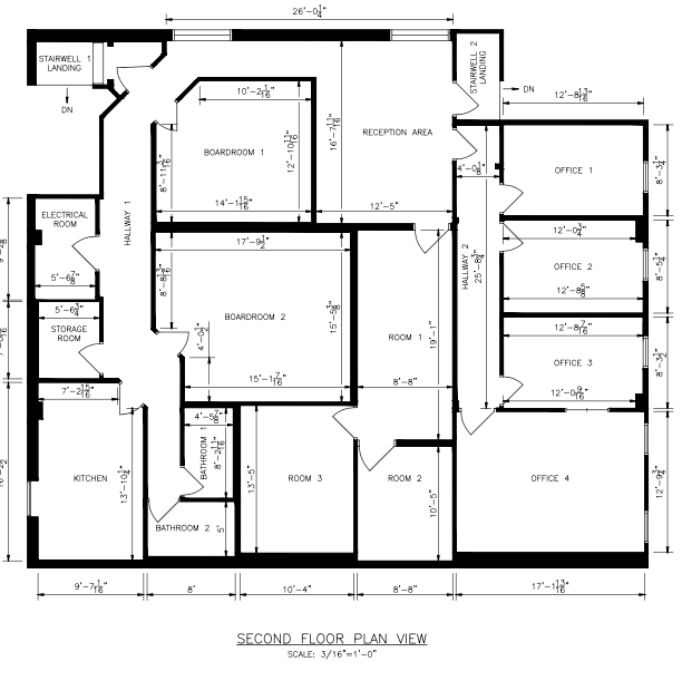
Floor Plan
Thoughtfully designed layout with versatile spaces

Office Spaces
- • 4 Private Offices
- • 2 Boardrooms
- • Reception Area
- • Additional Rooms
Amenities
- • Full Kitchen
- • Two Washrooms
- • Storage Room
- • Electrical Room
Lease Information
Competitive rates with flexible terms
Competitive base rate for premium office space
Estimated operating costs included in NNN lease
Triple net lease structure with transparent costs
Flexible lease terms to suit your business needs
Total: $25.50/sq ft(Base + Operating Costs)
Approximately $5,312.50 per month for 2,500 sq ft
Parking Options
Convenient parking solutions for you and your team
Dedicated Stall
Included with Lease
One dedicated parking stall comes with the unit
Additional Parking
Grant MacEwan Lot
Extra stalls available for rent at nearby parking lot
Street Parking
Free
Free street parking available around the property
Schedule Your Viewing Today
Contact Wilson to arrange a tour of this exceptional office space
Wilson
Leasing Agent
Property Address
Unit 201, 10577 109 ST NW
Edmonton, Alberta, Canada
Preferred Contact
Phone or text for fastest response